تسليح السلالم الخرسانية Pdf كتاب شرح تسليح السلم بالتفصيل والصور
السلالم الخرسانية Concrete Stairs أسعار مواد البناء والكهرباء الخرطوم السجانه Facebook
ملاحضات هامة يجب مراعاتها عند تسليح وتنفيذ السلالم الخرسانية مجلتك المعمارية
تنفيذ و تسليح السلالم مجلتك المعمارية
مهندس عبدالغني الجند On Twitter من الخطأ تنفيذ السلم رقة واحدة ولا بد من تنفيذ المقص تفاصيل تسليح السلم صورة من الكود المصري وصورة الكود السوري Https T Co Z74ducg7bv Https T Co 5uuubcr4fs
تسليح و صب الدرج السلالم حديد الهندسة والمعلومات Facebook
تسليح و صب الدرج السلالم Armoring And Casting Of Stairs مكتب وأدي آدس للاستشارات والأعمال الهندسية ليبيـــا بنـي وليـد
تسليح وتنفيذ السلالم الخرسانية تكون الهندسة والمعلومات Facebook
تسليح و صب الدرج السلالم Armoring And Casting Of Stairs مكتب وأدي آدس للاستشارات والأعمال الهندسية ليبيـــا بنـي وليـد
تسليح السلم صوره واحده توضح تسليح السلم وبعض التفصيلات الهامه فيه
63 تسليح السلالم في الـ Autocad Youtube
ملتقى المهندسين العرب
تسليح و صب الدرج السلالم Armoring And Casting Of Stairs مكتب وأدي آدس للاستشارات والأعمال الهندسية ليبيـــا بنـي وليـد
تسليح وتنفيذ السلالم الخرسانية يجب عمل المهندسون المتحدون للهندسة والإنشاءات United Engineers For Construction Facebook
مذكرة Pdf السلالم Stairs تصميم تنفيذ مشـروع مهندس انشائـي
سلالم مصنوعة من الخرسانة
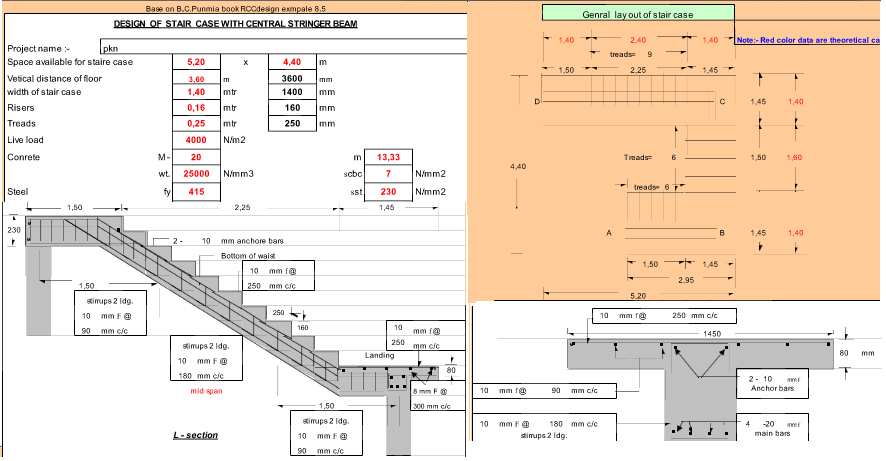
برنامج شيت إكسيل متميز سيساعدك في دراسة تصاميم السلاليم مجلتك المعمارية
مذكرة السلالم Pdf تصميم السلالم و خطوات تنفيذ واستلام السلالم بالتفصيل السلم العدل و السلم الدائري